Rotterdam-Zuid
2012-2013
Afstudeerproject
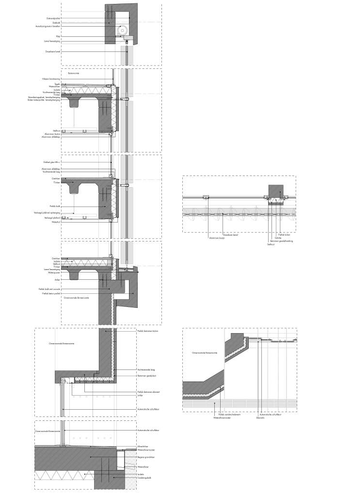
Tekeningen ter ondersteuning van de maatsschappelijke dialoog Over Het Spoor om de volgende grote barrière in Maastricht te slechten en de stad verder aaneen te hechten.
De thesis is hier in te zien.











Contact
Geïnteresseerd of meer weten? Neem contact met ons op.
Adres
Brusselseweg 69A,
Maastricht, 6217 GP
Social Media
Contact
+31 (0)6 – 15 48 60 44
info@trajectum-au.nl
